245 Fifth Avenue

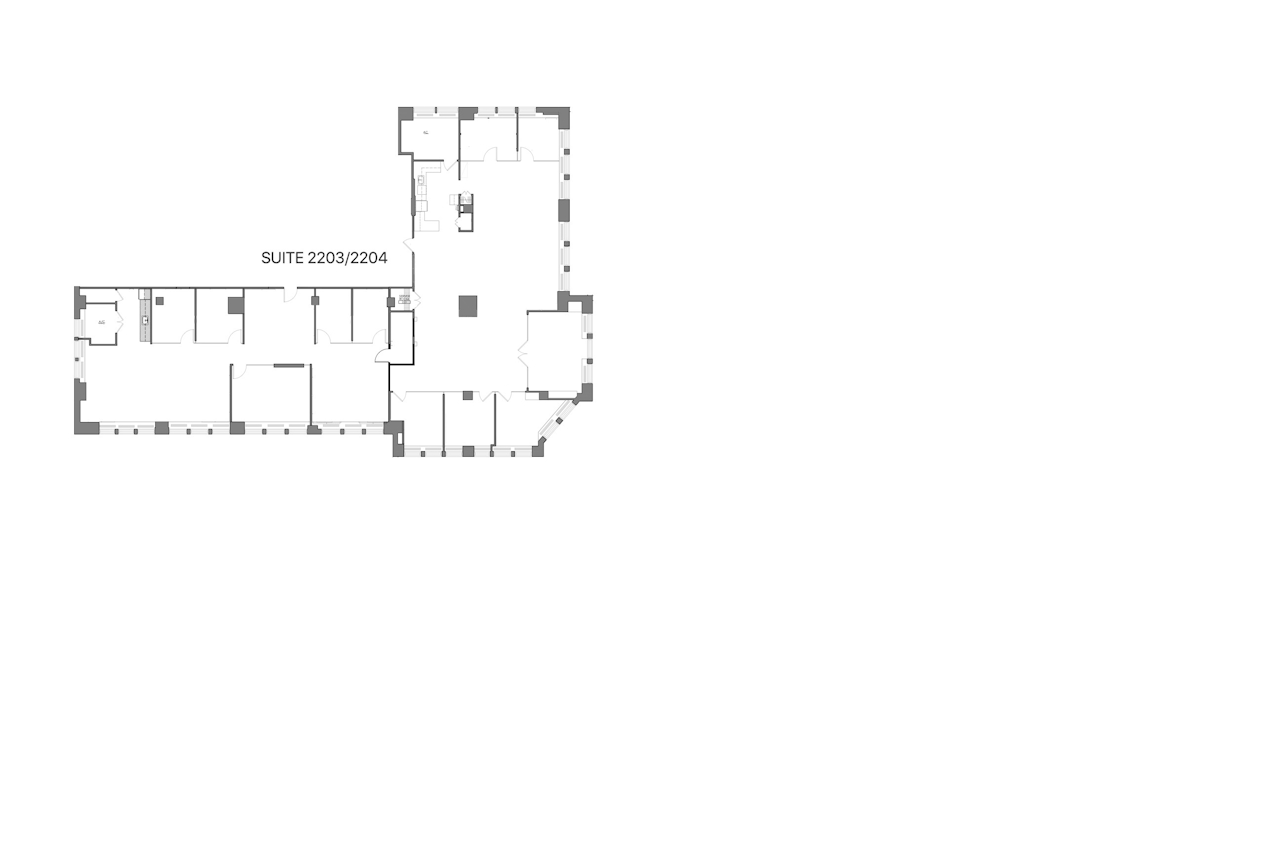
245 Fifth Avenue 2203/2204

NoMad, Manhattan

Net Effective
*Net price advertised
Available
Immediately
a tall building with a large window
These two units, which feature prebuilt offices, conference rooms, pantries and large open areas, can be combined to create one 8,693 square foot commercial space.
https://assets.nestiostatic.com/unit_photos/originals/8c65a053a6c48d624aba3cca0817ba33.jpg?s=7f9f946f935ea9f2d280b933a3814f18

245 Fifth Avenue Leasing Center